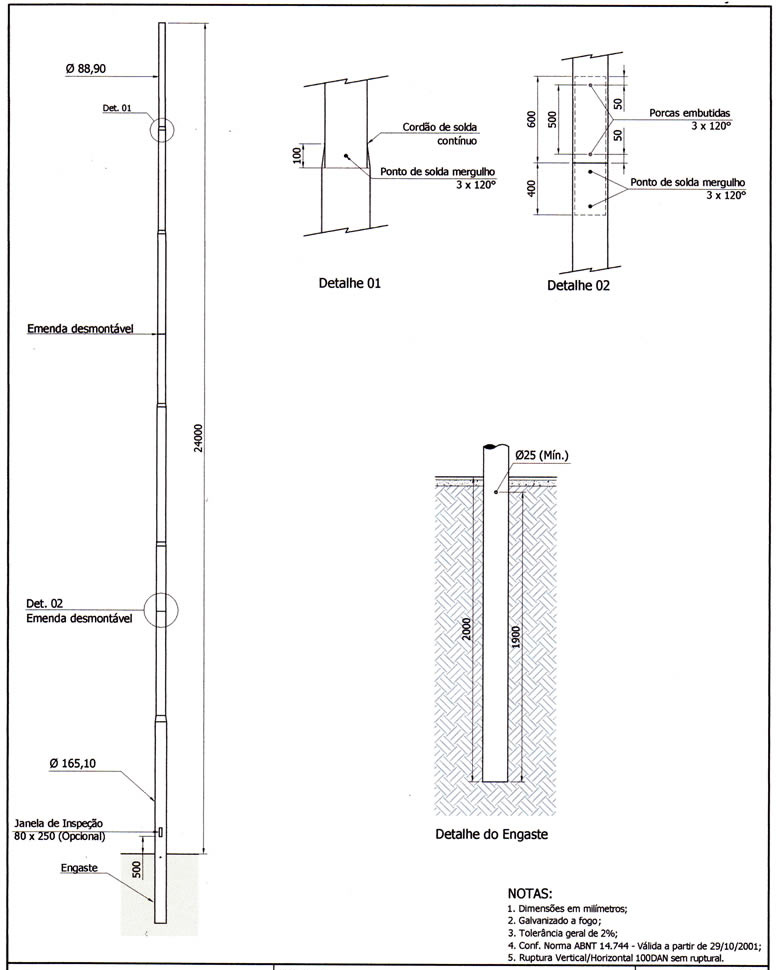
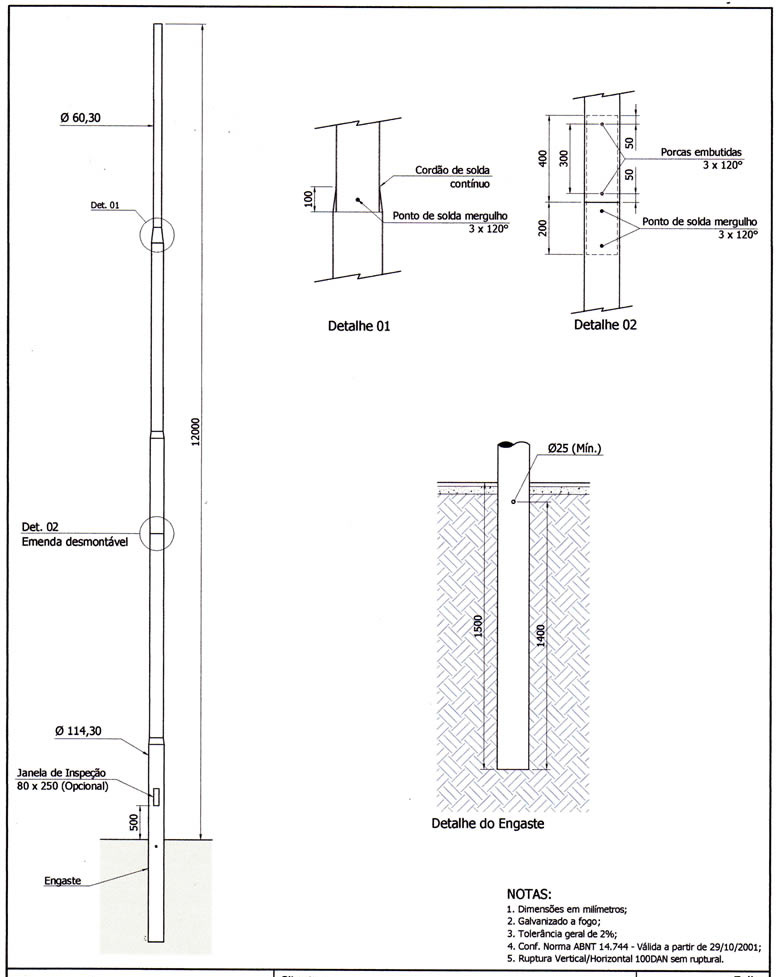
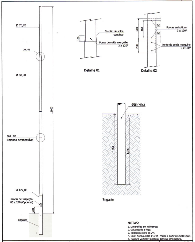
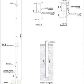
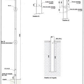
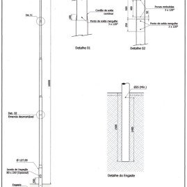
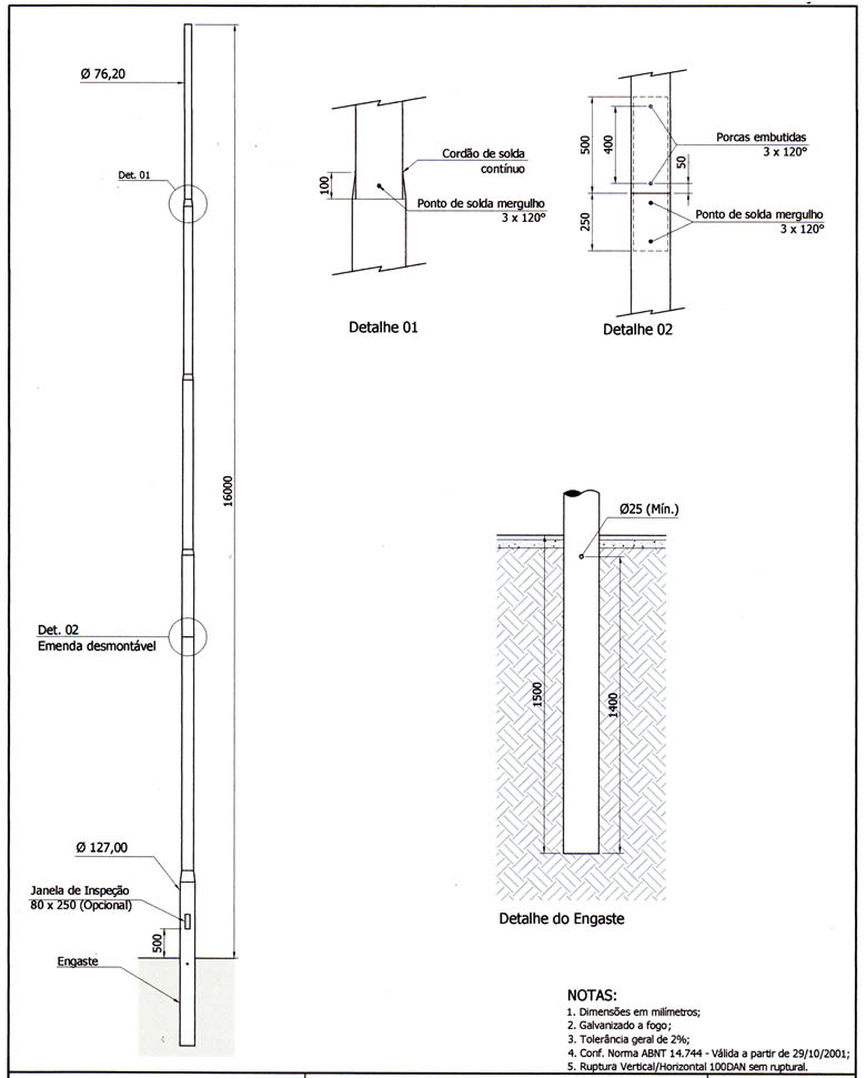
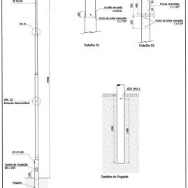
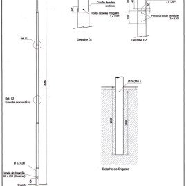
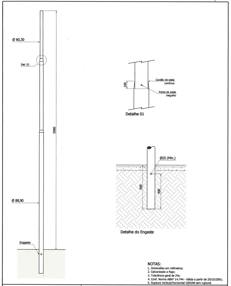
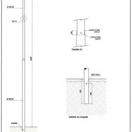
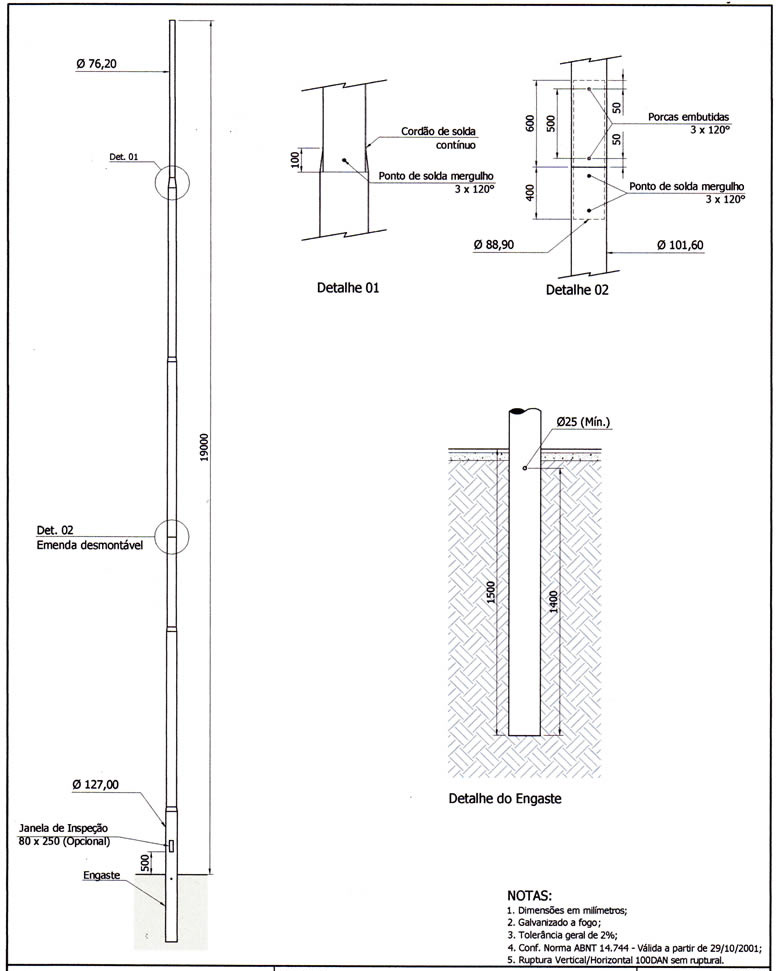
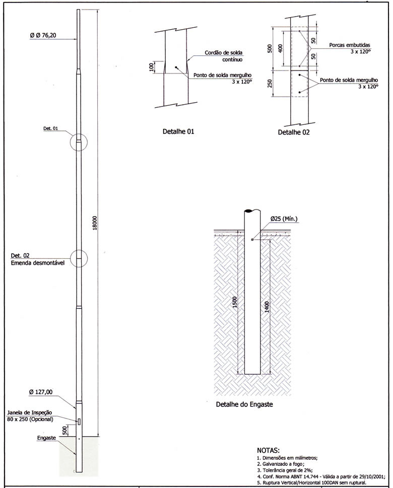
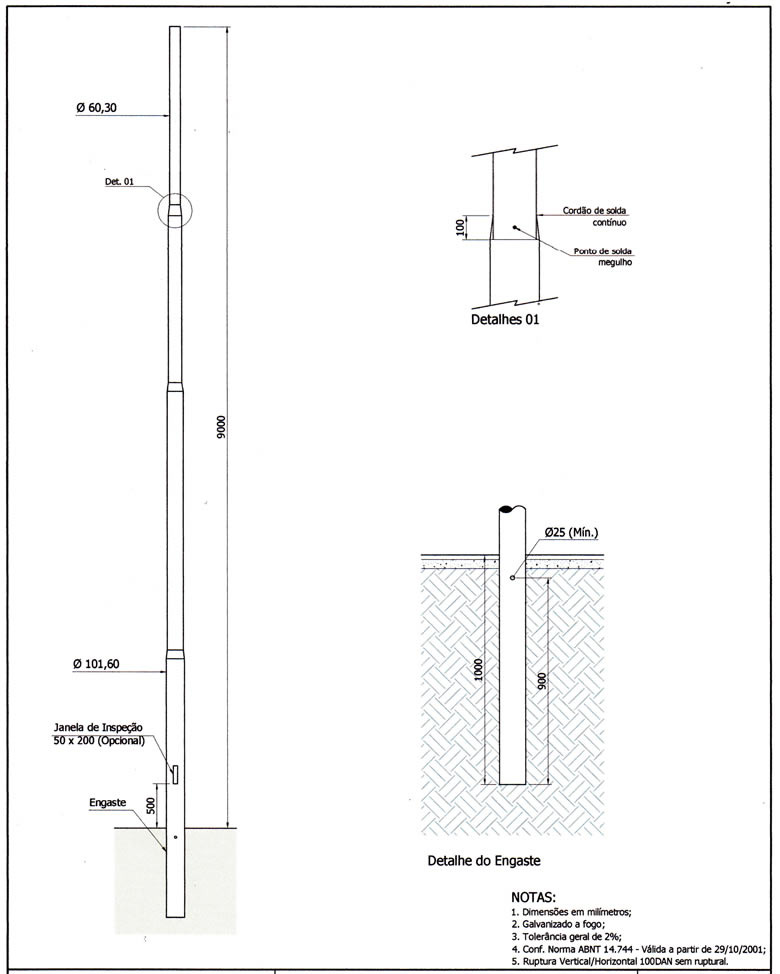
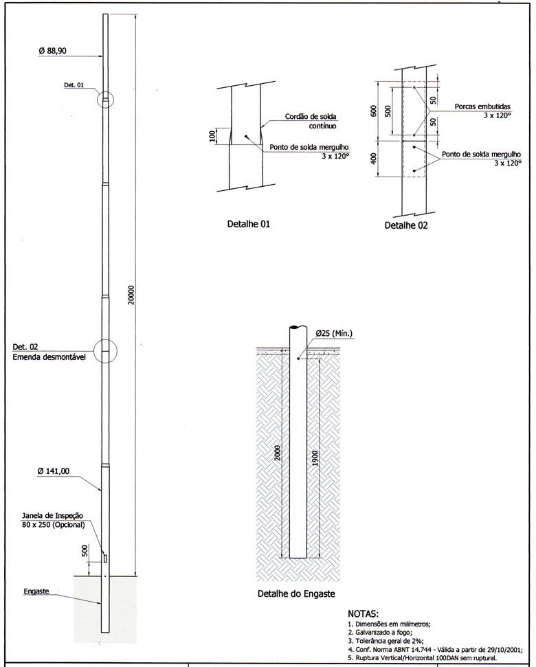
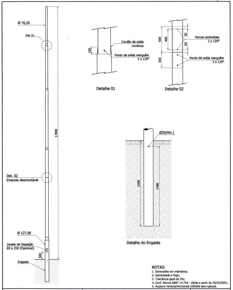
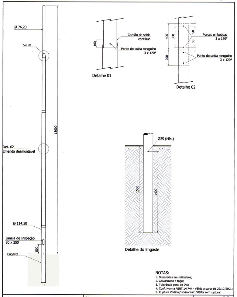
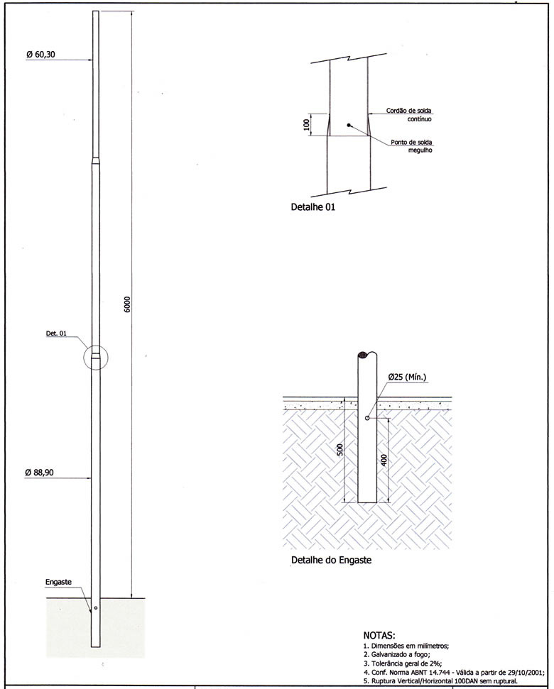
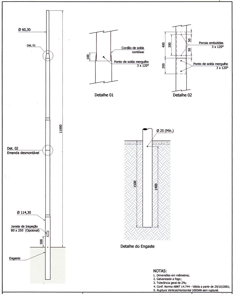
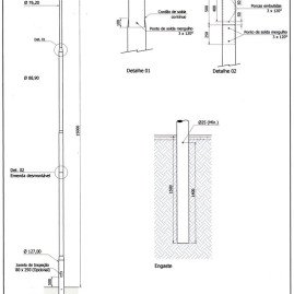
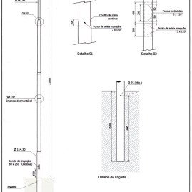
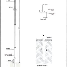
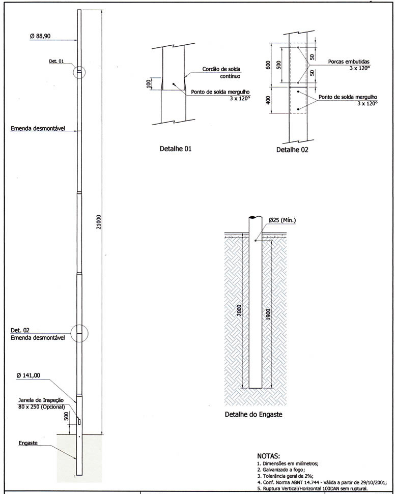
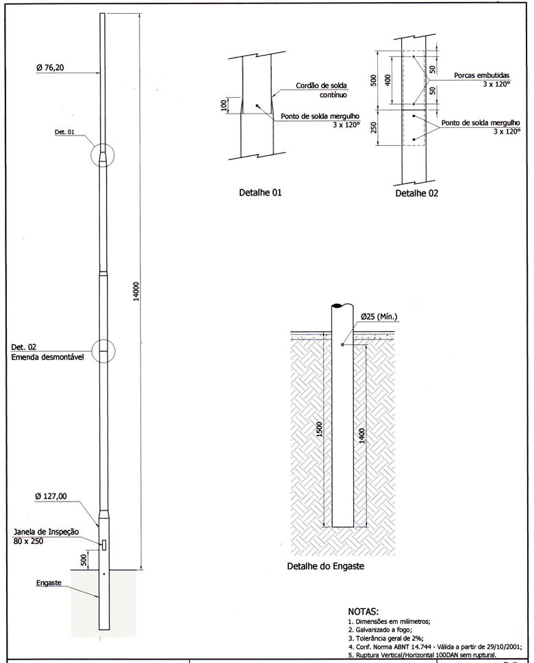
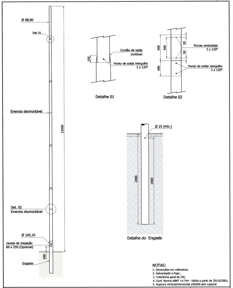
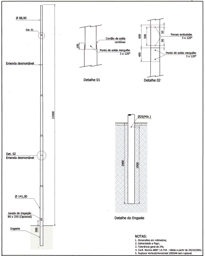
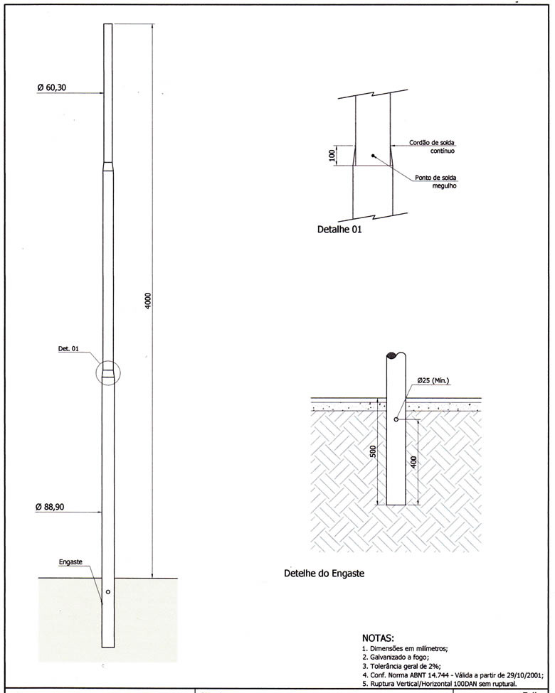
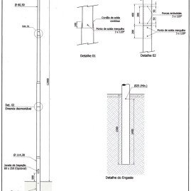
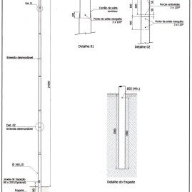
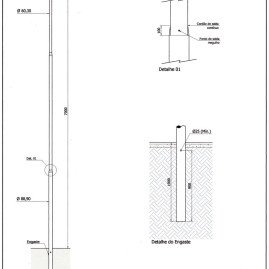
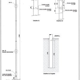
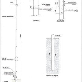
Postes reto engastado, dimensões em milímetros, galvanizados a fogo, tolerância geral de 2%, poste dentro da Norma ABNT 14.744 – Válida a partir e 29/10/2001, ruptura vertical/Horizontal 100DAN sem ruptura.
As variedades de iluminação pública definem infraestruturas complexas, SPPOSTES como fabricante de postes pode assegurar a disponibilização conforme as necessidades incluindo opções decorativas, garantindo que cidades economizem nos custos.
A iluminação pública no Brasil já atravessou uma longa estrada, das lâmpadas a óleo ao LED, nosso poste de iluminação é projetado para agregar as novas tecnologias de iluminação é os serviços inteligentes, econômicos e sustentáveis para as atuais cidades e principalmente para futuro.
